RECHERCHE

Maison jumelée à vendre 4 chambres à Tuntange

  • Référence : 5338845
  • Type : Maison jumelée
  • Chambres : 4
  • Surface habitable : +/-195,00 m2
  • Superficie terrain : +/- 298 Ares
  • Prix de vente : 601 000 €
Contact
Emission de gaz à effet de serre (GES) : 
N_C

Description

Ce bien se trouve dans ce lotissement

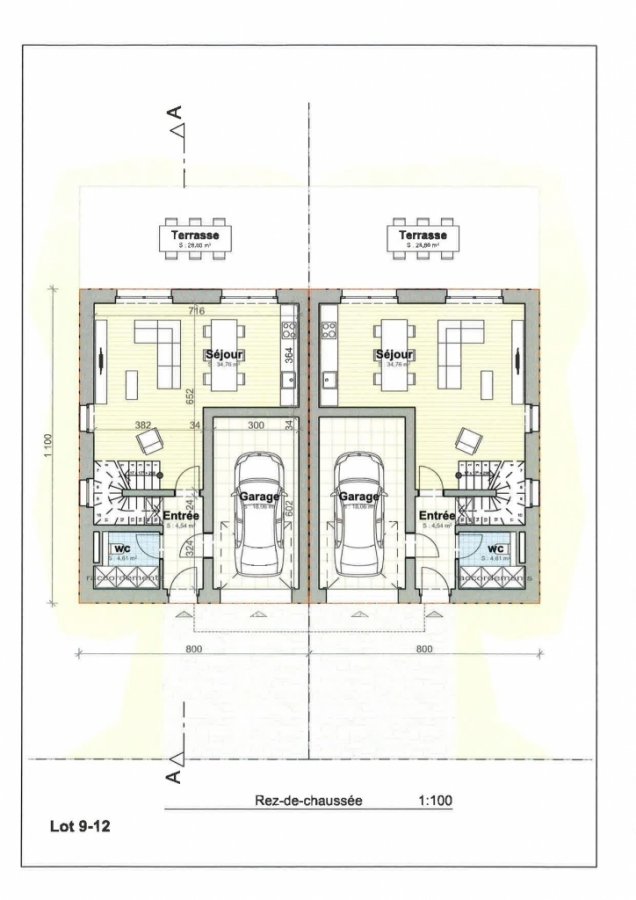
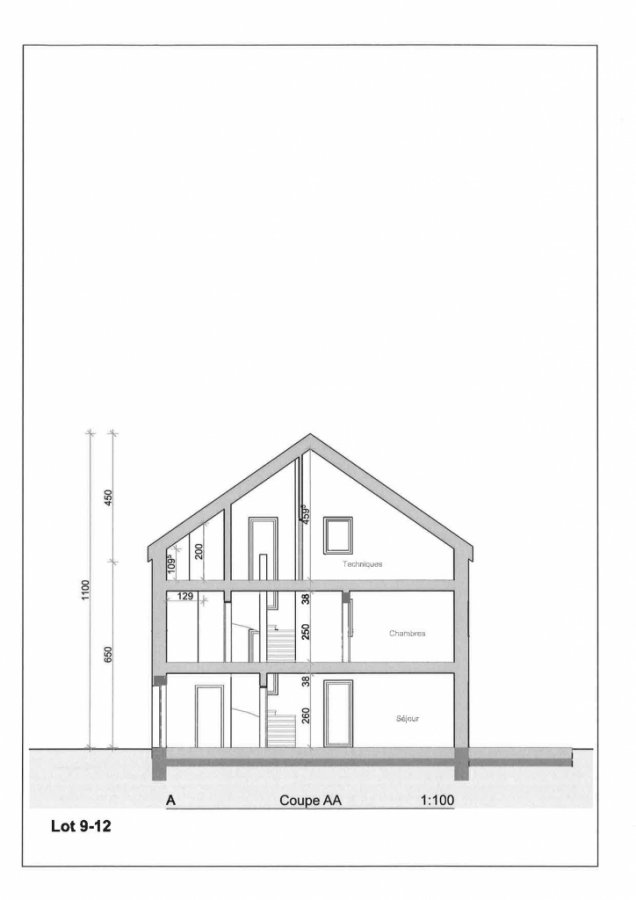
Nous vous proposons ici une maison jumelée d'une surface brute de 195m2 avec grenier aménagé.
1 Garage intérieur, 1 parking extérieur.
4 Chambres à coucher, 1 Dressing et 2 Salle de bains.

Tous les prix annoncés s'entendent à 3% TVA, sujet à une autorisation par l'administration de l'enregistrement et des domaines.
Ref agence :5481019 Lot9 Maison avec grenier aménagé

Caractéristiques

Sanitaires

Salles de bains2
Toilette séparée1

Extérieur

Terrain298.00 ares
Terrasse28.80 m²
Jardinoui

Voiture

Garage1
Place de parking1

Contactez-nous

+352 621 189 059
+352 26 53 00 30

Vous
 
Champs obligatoire
 
En envoyant ce formulaire, j’accepte que mes informations soient enregistrées puis utilisées par notre agence afin de répondre à ma demande. Consultez notre pour connaître vos droits.
 

Localisation

Attention : Si l'adresse exacte n’est pas renseignée, le centre de la localité sera indiqué sur la carte.