RECHERCHE

Appartement à vendre 2 chambres à Mersch

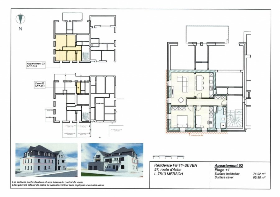
  • Référence : 5338771
  • Type : Appartement
  • Chambres : 2
  • Surface habitable : +/-74,02 m2
  • Superficie terrain : +/- 0 Ares
  • Etage : 1
  • Prix de vente : 456 719 €
Contact
Classe énergétique :
économe
B
énergivore
Classe d'isolation thermique : C
Emission de gaz à effet de serre (GES) : 
N_C

Description

Ce bien se trouve dans cette résidence

Mersch : Résidence Fifty-Seven

Nouveau

Ensemble résidentiel comportant 6 appartements de 67 à 102 m2, situé, 57, rue d'Arlon à Mersch, dont une partie est une maison entièrement rénovée avec 4 appartements et une nouvelle annexe avec 2 appartements.

Mersch se trouve à 23 km du Kirchberg et du centre ville de Luxembourg. L'accès autoroutier pour l'A7 est à 4 km. La gare ferroviaire et d'autobus est à 10 min de marche. Le centre de Mersch est à 500 m

Livraison fin 2019

Beaucoup d'efforts ont été entrepris afin d'obtenir une classification énergétique de bon niveau, afin de garantir un investissement immobilier qui gardera toutes sa valeur à l'avenir

Tous les prix annoncés s'entendent à 3% TVA, sujet à une autorisation par l'administration de l'enregistrement et des domaines.

Ref agence :App02 1er étage 5480952

Caractéristiques

Sanitaires

Salle de bain1

Voiture

Place de parking1

Chauffage / climatisation

Chauffageoui
Chauffage au gazoui

Contactez-nous

621189059

Vous
 
Champs obligatoire
 
En envoyant ce formulaire, j’accepte que mes informations soient enregistrées puis utilisées par notre agence afin de répondre à ma demande. Consultez notre pour connaître vos droits.
 

Localisation

Attention : Si l'adresse exacte n’est pas renseignée, le centre de la localité sera indiqué sur la carte.